OFFICE / SHOWROOM / GALLERY / SERVICE SHOP
NEWS
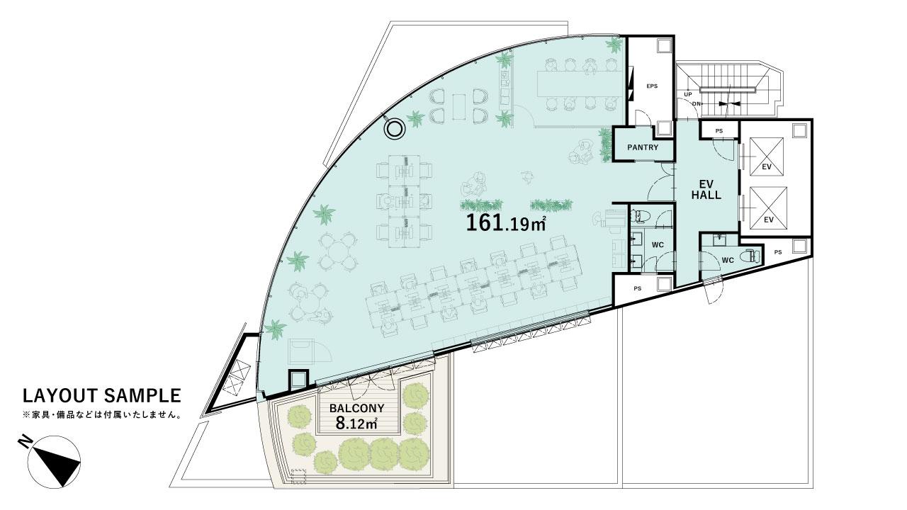
2025.12.09【FOR RENT】
5F入居募集中!
ワンフロア入居テナント募集中!
プランをみる >>
ABOUT
オリジナリティーのある
オフィス空間
1Fにスターバックスが入居する北参道駅隣・ガラス張りで明るい開放感あるビルを、フロア毎に内装を自由にカスタマイズ可能なスタイリッシュなビルへリノベーション。オフィスだけではなく、サービスショップ・ショールーム・サロンなど多様な用途でお使い頂けます。階高3.8m~5.0m、明るく開放感のある専有部は必要最低限のインフラ設備を設置したシンプルな空間を提供。スタイリッシュなグリーンが映える広々とした専用バルコニー付きフロア、メゾネット式で代々木公園を一望できる最上階のプレミアムフロアなど、様々なタイプのフロアをご用意しております。企業のアイデンティティを自由に反映出来るオリジナルなオフィス空間創りを可能にすることで、一層豊かなワークライフを創出します。
11F建てガラス張りの
開放感あるオフィスビル



PLAN&PRICE
| 区画 | 面積 | 賃料 | 諸経費 | 入居時期 |
|---|
<仕上> 床:タイルカーペット、OAフロア / 壁:ボード白塗装、ガラスサッシ / 天井:ボード塗装
<設備> 【給排水引き込み相談可】個別空調、換気設備、ベースライト、インターネット電話兼用空配管、コンセント、パントリー
※諸経費内訳:電気代、水道代、ごみ処理代
※本サイトに掲載されている募集情報は、状況によりお申込みや審査中の区画も含まれるため、ご案内できない可能性がございます。詳細はお問合せください。
REQUIREMENT
- 種別
- 事務所 / サービス店舗
- 契約種類
- 定期建物賃貸借契約
- 契約期間
- 3年
- 再契約
- 相談可
- 再契約料
- 新賃料の1.1ヶ月分
- 保証金
- 賃料(共益費含む)の4.1ヶ月分
- 保証金償却
- 保証金の内、賃料(共益費含む)の1.1ヶ月分
- 期間内解約
- 事務所(3ヶ月前)/サービス店舗等(4ヶ月前)
- 保証会社
- 必須
- 保証会社委託料
- 税込月額固定費の1月分(非課税)
- 更新保証料
- 1年毎 50,000円(非課税)
- 火災保険
- 貸主指定の火災保険に加入
- 契約事務手数料
- 賃料の1.1ヶ月分
- 取引態様
- 貸主
- その他別途費用
- 社名表示作成料 入居時・変更時5,000円(税込5,500円)、
別途費用有:電話回線、個別インターネット引込
LAYOUT IMAGE
Shooting Studio +
Office
Interior Company
Showroom + Office
Outdoor Company
Showroom + Office
MERIT OF THE SERVICE
自由な空間づくり
空調設備やコンセント電源等の必要なインフラ設備を設置したシンプルな空間で引き渡しすることで、自由度が高く制約の少ない空間をデザインできます。ゾーニングが自由に行えるので自社に必要な空間、設備が反映でき、有効な空間利用を可能にします。
OUTLINE
- 用途
- サービス店舗・事務所
- 構造/規模
- 鉄骨造陸屋根11階建
- 竣工年
- 2008年1月
- リノベーション竣工年
- 2021年12月
- 貸主
- 株式会社リアルゲイト
ACCESS
〒151-0051 東京都渋谷区千駄ケ谷3-38-14
東京メトロ副都心線「北参道駅」徒歩1分(2番出口横)


